5 pokojowy bliźniak z garażem, trawa, ogrodzenie. Dobra (Szczecińska), Wąwelnica

5 pokoi
125.24 m²
6 667,20 zł/m2
KNG-DS-12358
Powiadom o spadku ceny

835 000 zł

5 pokojowy bliźniak z garażem, trawa, ogrodzenie.

Szczegóły oferty

Symbol oferty KNG-DS-12358
Powierzchnia 125,24 m²
Powierzchnia użytkowa [m2] 121,04 m²
Powierzchnia działki [m2] 443 m²
Liczba pokoi 5
Liczba sypialni 4
Rodzaj domu bliźniak
Technologia budowlana porotherm
Standard
Liczba pięter w budynku 1
Garaż w bryle
Okna PCV
Instalacje nowe
Balkon jest
Liczba balkonów 1
Liczba tarasów 1
Zagosp. działki zagospodarowana
Ukształtowanie działki płaska
Kształt działki prostokąt
Pokrycie dachu dachówka ceramiczna
Stan budynku do wykończenia
Ogrodzenie działki ogrodzona
Rok budowy 2024
Gaz tak - miejski
Woda tak - miejska
Dojazd kostka brukowa
Otoczenie zabudowa jednorodzinna
Ogrzewanie podłogowe
Tarasy taras duży
Drzwi antywłamaniowe tak
Prąd jest
Kanalizacja miejska
Pomieszczenia
Powierzchnia pokoi 23,09; 10,40; 14,36; 13,35; 9,71 m2
Podłogi pokoi wylewka betonowa
Typ kuchni otwarta na pokój
Rodzaj kuchni otwarta połączona z jadalnią
Powierzchnia kuchni 6,77 m2
Podłoga kuchni wylewka betonowa
Typ łazienki razem z wc
Liczba łazienek 2
Powierzchnia łazienki [m2] 2,79; 6,39 m2
Glazura łazienki bez glazury
Podłoga łazienki wylewka betonowa
Liczba przedpokoi 3
Powierzchnia przedpokoi 4,26; 5,22; 6,04 m2
Podłoga przedpokoi wylewka betonowa

Opis nieruchomości

----Oferta na wyłączność----

Na sprzedaż komfortowy 5 pokojowy budynek mieszkalny jednorodzinnym w zabudowie bliźniaczej z garażem w bryle budynku, na działce o powierzchni 454 m2,  zlokalizowany w atrakcyjnej części Wąwelnicy na miłym i kameralnym zamkniętym osiedlu domów w zabudowie bliźniaczej w sąsiedztwie terenów zielonych.


Dom sprzedawany z w pełni zagospodarowanych i ogrodzonym terenem (tarasy, czarnoziem, trawa-siana). Droga dojazdowa prywatna, wyłożona kostką brukową. Cały teren ogrodzony, zamknięty (wjazd na teren przez szlaban) dzięki czemu mamy miłe, spokojne i kameralne osiedle złożone z 6 domów jednorodzinnych w zabudowie bliźniaczej.

Droga dojazdowa prywatna, utwardzona, a dojazd i podjazdy będą wyłożone polbrukiem. Cały teren inwestycji będzie wyrównany i ogrodzony. Ogrody zagospodarowane (czarnoziem, trawa).

Ceny budynków różnią się w zależności od metrażu działki:

-Budynek 1 – działka o powierzchni 443 m2. - 835 000 zł. - zarezerwowany

-Budynek 2 – działka o powierzchni 454 m2 - 870 000 zł. - zarezerwowany

-Budynek 3 - działka o powierzchni 465 m2. - 875 000 zł.

-Budynek 4 - działka o powierzchni 475 m2. - 881 000 zł.

-Budynek 5 - działka o powierzchni 489 m2. - 887 000 zł.

-Budynek 6 - działka  o powierzchni 553 m2. - 928 000 zł.

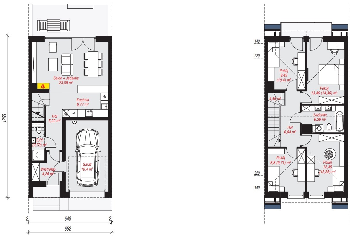
Układ pomieszczeń:

Parter 59,95m2 (60,53m2):
-wiatrołap 4,26m2,
-hall 5,22m2,
-łazienka 2,21m2 (2,79m2),
-salon + jadalnia 23,09,
-kuchnia 6,77m2,
-garaż 18,40m2.

Poddasze 61,09m2 (64,71m2):
-schody 4,46m2,
-hol 6,04m2,
-pokój 9,49m2 (10,40m2),
-pokój 13,46m2 (14,36m2),
-łazienka 6,39m2,
-pokój 12,45m2 (13,35m2),
-pokój 8,80m2 (9,71m2).

Niskie koszty utrzymania. Opłaty za zużycie mediów.
Do każdego budynku doprowadzenie zewnętrznych instalacji: woda, kanalizacja sanitarna, kanalizacja deszczowa ze szczelnym zbiornikiem retencyjnym, gaz, energia elektryczna.
 

STANDARD WYKOŃCZENIA:

1.       KONSTRUKCJA    
·  Ściany zewnętrzne nośne Ytong 24cm wewnętrzne z bloczków silikatowych
·  Strop żelbetonowe - wylewane
·  Posadowienie na ławie fundamentowej
·  Schody wewnętrzne na piętro, żelbetowe wylewane

2.       IZOLACJE
·  Izolacja od gruntu – styropian XPS 15cm (obwód fundamentów)
·  Izolacja podłogi  – styropian 16 cm
·  Izolacja stropów – styropian 5 cm
·  Izolacja sufitów – 25cm wełna
·  Izolacje pomiędzy budynkami (dylatacja) – styropian  2 cm
·  Izolacja przeciwwilgociowa i przeciw wodna
·  Izolacja ścian zewnętrznych  - 20 cm styropian grafitowy

3.       WYKOŃCZENIE ZEWNĘTRZNE
·  Elewacja – tynk silikatowy/ farba elewacyjna (kolorystyka antracyt / ciemny szary/ biały)
·  Dach – betonowa - Roben Dachowka Bergamo antracytowa

·  Parapety zewnętrzne – kolor antracyt
·  Rynny i rury spustowe systemowe zewnętrzne PVC – antracyt kolor
·  Kominy ponad dachem murowane – obróbki  (ciemny szary)

4.       STOLARKA
·  Okna i drzwi balkonowe plastikowe, antracyt (wewnętrzne i zewnętrzne).
·  Szklenie potrójne
·  Wyjście na taras "suwanka" PSK
·  Puszki + rolety zewnętrzne (osadzone pod styropianem kolor antracyt / ciemny szary) 
·  Drzwi zewnętrzne wejściowe  - antracyt, firma Wiśniewski,

- Brama garażowa firmy Wiśniewski, automatyczna.

5.       WYKOŃCZENIE WEWNĘTRZNE
·  Posadzki betonowe kuchni, łazienek, korytarzy, pomieszczeń mieszkalnych
·  Ściany – tynki gipsowe
·  Sufity – płyty GK

6.       INSTALACJE C.O.
·  Piec Gazowy kondensacyjny z zamkniętą komorą spalania
·  Instalacja ogrzewania podłogowego : parter + poddasze, termostaty + dwie rozdzielnie.

7.       INSTALACJE WODNO-KANALIZACYJNE
·   Ścieki sanitarne odprowadzane przez przyłącza kanalizacji sanitarnej 
·   Wody opadowe odprowadzane do zbiornika zamkniętego  na terenie działki - możliwość wykorzystania do podlewania ogrodu. 
·   Woda doprowadzona do punktów pobory wody w łazienkach i kuchni
·   Przyłącze zewnętrzne do wody ogrodowej

8.       INSTALACJE ELEKTRYCZNE
·   Tablica rozdzielcza z bezpiecznikami
·   Gniazdo telewizyjne i internetowe w sypialniach i pokoju dziennym
·   Instalacja alarmowa       
·  Wyprowadzony dodatkowy przewód zewnętrzny kabla za zewnątrz (lampy ogrodowe, elektryczna kosiarka, altanka).

9.      POZOSTAŁE INSTALACJE
·   Dodatkowy przewód kominowy i przewód powietrzny dla kominka

10.   TEREN
·  Utwardzenie, podejście do domu + śmietnik (miejsce zbiorcze) oraz miejsca parkingowe do każdego lokalu.
·  Wyrównanie terenu i wstępne zagospodarowanie terenu trawy i czarnej ziemi
·  Ogrodzenie z siatki panelowej, kolor antracyt / ciemny szary (całość obwodu działki, między sąsiadami, front za miejscem parkingowym z furtką wejściową w segmentach skrajnych).
· Opaska z obrzeża dookoła budynku + otoczak
· Taras zewnętrzny polbrukowy w wymiarze ok. 2,5m x 5m

Informacje dodatkowe:
podwójna ściana między budynkami,
- media: gaz miejski, kanalizacja miejska, woda miejska,
- poddasze nieużytkowe z włazem - wysokość w najwyższym punkcie ok. 2,3m.

Sprzedawane na podstawie umowy deweloperskiej, w stanie deweloperskim, bez podatku 2% PCC.

Planowany termin realizacji - 09.2026r.


Zapraszam na prezentację.

Podobne oferty

5 pokojowy bliźniak z garażem, trawa, ogrodzenie.

Dobra (Szczecińska), Wąwelnica

5 pokoi 125 m2 6 946,66 zł/m2

Proszę wprowadzić poprawne imię i nazwisko
Proszę wprowadzić poprawny numer telefonu
Proszę wprowadzić poprawny adres e-mail
Proszę zaznaczyć wymagane zgody