Mieszkanie na sprzedaż Szczecin, Turzyn, Krzywoustego

1 pokoj
31.61 m²
12 729,52 zł/m2
4 piętro
NGK-MS-494
Powiadom o spadku ceny

459 000 zł 402 380 zł
Najniższa cena z ostatnich 30 dni: 402 380 zł

nowa cena
Mieszkanie na sprzedaż
Oferta specjalna

Szczegóły oferty

Symbol oferty NGK-MS-494
Powierzchnia 31,61 m²
Powierzchnia użytkowa [m2] 31,61 m²
Liczba pokoi 1
Rodzaj budynku kamienica
Technologia budowlana cegła
Standard
Piętro 4
Liczba pięter w budynku 4
Stan lokalu deweloperski
Okna drewniane
Instalacje nowe
Balkon brak
Widok na inne budynki
Gaz jest
Woda piec gazowy dwufunkcyjny
Dojazd asfalt
Otoczenie centrum miasta
Ogrzewanie gazowe
Umeblowanie brak
Usytuowanie jednostronne
Klucze tak
Pomieszczenia

Opis nieruchomości

Do sprzedaży kawalerka z garderobą położona przy ul. Krzywoustego przy Turzynie.

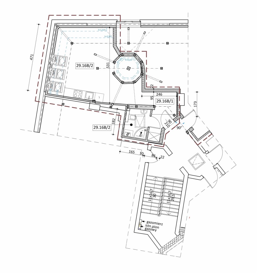
Adaptacja poddasza:
- pokój z aneksem kuchennym 21,93 m2,
- łazienka 3,24 m2,
- korytarz 6,44 m2,

Mieszkanie narożne o południowej ekspozycji okien. Powierzchnia użytkowa wg. dokumentacji projektowej to 31,61 m2 (całkowita 36,58 m2).

Lokal oddany będzie w standardzie deweloperskim z możliwością wykończenia lokalu pod klucz.

Standard: podłogi - płyta OSB oraz płyta ognioodporna, ściany i sufity wygładzone i
pomalowane na biało, zamontowany piec dwufunkcyjny z zamkniętą komorą spalania, grzejniki oraz rozprowadzone instalacje: elektryczna, gazowa i wodno – kanalizacyjna. W kuchni i w łazience wyprowadzone, w zależności od projektu, wszystkie podłączenia pod zlewy, umywalki, wanny lub kabiny prysznicowe, pralki, itp. Drzwi wejściowe antywłamaniowe, ognioodporne.

Podana cena jest ceną brutto, zawiera podatek VAT - kupujący nie płaci 2 % podatku PCC.

Polecam.

 




Oferta biura nieruchomości.

Wynagrodzenie biura pokrywa każda ze stron transakcji.
Aktualny cennik znajduje się na stronie biura NG Nieruchomości w zakładce „o nas”.

Lokalizacja nieruchomości

Podobne oferty

Oferta specjalna

Mieszkanie na sprzedaż

Szczecin, Turzyn

2 pokoje 79 m2 6 502,21 zł/m2
Oferta specjalna
Oferta specjalna

Mieszkanie na sprzedaż

Szczecin, Turzyn

1 pokoj 36 m2 12 447,01 zł/m2
Oferta specjalna
Oferta specjalna

Mieszkanie na sprzedaż

Szczecin, Turzyn

1 pokoj 31 m2 11 368,08 zł/m2
Oferta specjalna
Oferta specjalna

Mieszkanie na sprzedaż

Szczecin, Turzyn

3 pokoje 42 m2 10 869,05 zł/m2
Oferta specjalna

Proszę wprowadzić poprawne imię i nazwisko
Proszę wprowadzić poprawny numer telefonu
Proszę wprowadzić poprawny adres e-mail
Proszę zaznaczyć wymagane zgody