Mieszkanie na sprzedaż Stargard (gw)

2 pokoje
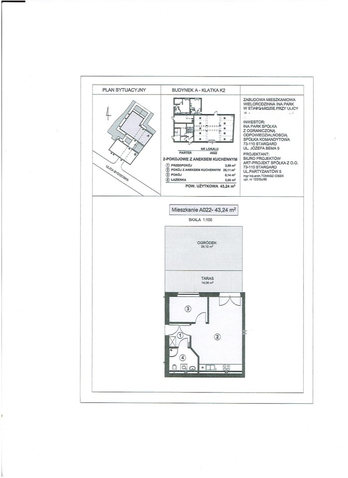
43.26 m²
10 402,22 zł/m2
parter
NWW-MS-60
Powiadom o spadku ceny

450 000 zł

Mieszkanie na sprzedaż
Nowa oferta

Szczegóły oferty

Symbol oferty NWW-MS-60
Powierzchnia 43,26 m²
Liczba pokoi 2
Piętro parter
Pomieszczenia

Opis nieruchomości

Na sprzedaż mieszkanie z ogródkiem, w kameralnym budynku z 2018 roku.
Na powierzchnię 43,26 m2, składają się : pokój z aneksem kuchennym 26,11m2, sypialnia 8,14 m2, przedpokój 3,99 m2, łazienka wraz z toaletą 5 m2.
Do mieszkania przynależy taras 14,06 m2, płynnie przechodzący w ogródek 28,12m2 . Całość gruntu na zewnątrz, 42,18 m2, ogrodzono panelami siatkowymi.
Czynsz miesięczny w wys. 650 zł zawiera w sobie FR, zaliczki na zimną wodę, kanalizację, wywóz śmieci, ogrzewanie, naprawy bieżące, monitoring, sprzątanie, koszty zarządzania.
Ogrzewanie budynku realizowane jest własną kotłownią gazową. Mieszkania są rozliczane na podstawie odczytu indywidualnych podzielników.  
Cena zawiera wyposażenie widoczne na zdjęciach i podlega rozsądnym negocjacjom. Mieszkanie wolne od zaraz. 

Proszę wprowadzić poprawne imię i nazwisko
Proszę wprowadzić poprawny numer telefonu
Proszę wprowadzić poprawny adres e-mail
Proszę zaznaczyć wymagane zgody